发布(bù)时间:2022-11-25 12:26:09 作 者:大汉机械

垂直螺旋输送机是一种采用紧(jǐn)凑设计提升散(sàn)装物料,它是在一个完全封闭的壳(ké)体内利用旋转轴来实现这一点,该螺旋轴可以始(shǐ)终如一地向上移动产品。下面将为大家介绍垂直螺旋输送机的(de)优势(shì)。
它可以以指定的速率将产品从料斗或料箱中取出到工艺流中,确保自动化、的产品部分。

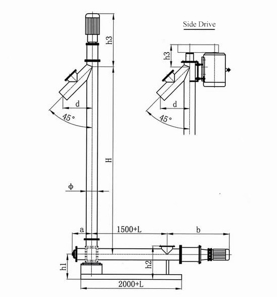
垂(chuí)直螺旋输送机由水平进料螺旋和垂直(zhí)螺旋组成,从料(liào)仓或料斗或从上游进料装置进料,保证进料有足够的仓压,确保物料能顺利地向上输送,垂直提升高度可达8米。
设(shè)计紧凑,因此不会占用大量地面空间,输送机适用于大多数工(gōng)厂布局。

螺旋输(shū)送机是完全封闭(bì)的,确(què)保没有产品(pǐn)溢(yì)出和浪费,减少粉尘污染,这也(yě)可以确保没(méi)有污染影响您的员工,从而降低相关的成(chéng)本。
垂直螺旋组件包括安装在筒(tǒng)仓或料斗下方的水平螺旋喂料器,该立式机器由与进给速率和速度同步的水平(píng)进给螺杆进给,螺旋输送机驱动器驱(qū)动进给螺(luó)杆和垂直螺杆。

您可以用(yòng)它向任何(hé)方向卸料,因此,物料可以通过垂直螺旋中类似于水平输(shū)送机上的开口卸料,在(zài)某些情况下,通过将排料口连接到弯头或通(tōng)过其他类型的排料,可以将物料转移到后续输送(sòng)机或工艺中。
以上是垂直(zhí)螺旋输(shū)送机的6大优势,对于废水设(shè)施、木材生产(chǎn)、化学和食品以及采矿作业而言,垂直螺旋输(shū)送机具有很高的成本效益,它处理干燥(zào)和半流体材料,同(tóng)时控制缓慢和自由流(liú)动的材料,降低成本。
下一篇:没有(yǒu)了
Copyright © 2008-2019螺旋输送机(jī)厂家-新乡市(shì)大汉振动机械有限公司(sī) All Rights Reserved 版权所有
网站备(bèi)案号:豫ICP备09002479号-47

